

DQ41Y,DQ41F,DQ61Y,DQ61F低溫球閥
DQ41Y、DQ41F、DQ61Y、DQ61F低溫球閥適用于低溫液體貯運設備的管理系統,具有開關靈活、密封可靠的特點,也可用于其他低溫和深冷介質的管理系統。
| 產品名稱: | 低溫球閥 | 產品型號: | (DQ41Y/F)(DQ61Y/F) |
| 公稱通徑: | DN15~DN300 | 結構形式: | 球形 |
| 公稱壓力: | 1.6Mpa~16.0Mpa | 連接方式: | 法蘭、螺紋、焊接 |
| 適用溫度: | -46℃~-101℃~-196℃ | 驅動方式: | 手動、電動、氣動 |
| 閥體材質: | 鑄鋼、不銹鋼 | 制造標準: | 國標GB、德國DIN、美國API、ANSI |
| 適用介質: | 乙烯、液氧、液氫、液氮、液氨、液態丙烷、液化天然氣 | 生產廠家: | 上海凱利科閥門有限公司 |
| 設計依據 | GB |
| 設計標準 | GB12237-89 |
| 結構長度 | GB12221-89 |
| 連接法蘭 | GB/T 9113-2000 JB/T79-94 |
| 試驗和檢驗 | JB/T 9092-99 |
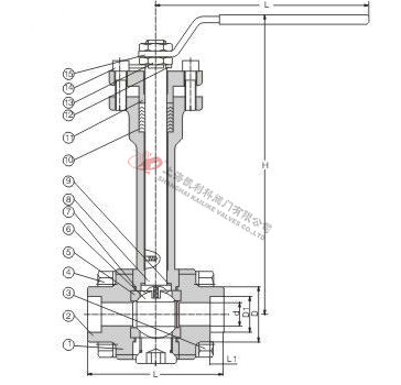
| 序號 | 零件名稱 | AS to ASTM | SS to ASTM | ||
| Type A352 LCB | Type A352 LC3 | Type F304(L) | Type F304(L) | ||
| 1-2 | 閥體/閥蓋 | Type A352 LCB | Type A352 LC3 | A182 F304(L) | A182 F304(L) |
| 3 | 等長雙頭螺栓 | A193L7+鍍鎘 | A193 3 B8 | A193 B8 | A193 B8M |
| 4 | 螺母 | A193L7+鍍鎘 | A194 8 | A194 8 | A194 8M |
| 5,8 | 密封圈、墊片 | RTFE+Cu粉/尼龍1010/PPL | |||
| 6 | 球體 | A182 F304 | A182 F304(L) | A182 F304(L) | A182 F316(L) |
| 7 | 閥桿 | A182 F304 | A182 F304(L) | A182 F304(L) | A182 F316(L) |
| 9,10 | 止推片、填料 | RTFE+Cu粉/尼龍1010/PPL,碳素纖維 | |||
| 11 | 壓蓋 | A105N | A351 CF8 | ||
| 12 | 定位片 | A182 F321 | |||
| 13 | 扁螺母 | A194 4+鍍鎘 | A194 8 | A194 8 | A194 8 |
| 14 | 手柄 | A193 L7+鍍鎘 | A193 B8 | A193 B8 | A193 B8 |
| 15 | 圓柱銷 | Q235A | |||
| 適用溫度 | ≥-40°C | ≥-101°C | ≥-196°C | ||
| DN | Inch | L | d | L1 | D | D1 | H | W |
| 15 | 1/2 | 92 | 13 | 9.6 | 36 | 21.8 | 230 | 160 |
| 20 | 3/4 | 111 | 18 | 12.7 | 42 | 27.3 | 260 | 220 |
| 25 | 1 | 127 | 23 | 12.7 | 52 | 33.8 | 280 | 220 |
| 32 | 11/4 | 140 | 28 | 12.7 | 60 | 42.6 | 290 | 250 |
| 40 | 11/2 | 152 | 35 | 12.7 | 68 | 48.7 | 320 | 300 |
| 50 | 2 | 178 | 45 | 15.9 | 80 | 61.2 | 340 | 350 |
|
公稱通徑 DN |
PN1.6MPa |
WT (kg) |
|||||||
| L | D | D1 | D2 | b | Z-Φd | H | W | ||
| 15 | 130 | 95 | 65 | 45 | 14 | 4-Φ14 | 178 | 140 | 3 |
| 20 | 140 | 105 | 75 | 55 | 14 | 4-Φ14 | 184 | 160 | 4 |
| 25 | 150 | 115 | 85 | 65 | 14 | 4-Φ14 | 195 | 180 | 5 |
| 32 | 165 | 135 | 100 | 78 | 16 | 4-Φ18 | 280 | 250 | 9 |
| 40 | 180 | 145 | 110 | 85 | 16 | 4-Φ18 | 280 | 300 | 11 |
| 50 | 203 | 160 | 125 | 100 | 16 | 4-Φ18 | 300 | 350 | 15 |
| 65 | 222 | 180 | 145 | 120 | 18 | 4-Φ18 | 330 | 350 | 19 |
| 80 | 241 | 195 | 160 | 135 | 20 | 8-Φ18 | 360 | 400 | 27 |
| 100 | 305 | 215 | 180 | 155 | 20 | 8-Φ18 | 400 | 500 | 38 |
| 125 | 356 | 245 | 210 | 185 | 22 | 8-Φ18 | 430 | 600 | 58 |
| 150 | 394 | 280 | 240 | 210 | 24 | 8-Φ23 | 500 | 800 | 81 |
| 200 | 457 | 335 | 295 | 265 | 26 | 12-Φ23 | 680 | 800 | 95 |
| 250 | 533 | 405 | 355 | 320 | 30 | 12-Φ25 | 790 | 1300 | 140 |
|
公稱通徑 DN |
PN2.5MPa |
WT (kg) |
|||||||
| L | D | D1 | D2 | b | Z-Φd | H | W | ||
| 15 | 140 | 95 | 65 | 45 | 16 | 4-Φ14 | 178 | 140 | 3 |
| 20 | 152 | 105 | 75 | 55 | 16 | 4-Φ14 | 184 | 160 | 4 |
| 25 | 165 | 115 | 85 | 65 | 16 | 4-Φ14 | 195 | 180 | 6 |
| 32 | 178 | 135 | 100 | 78 | 18 | 4-Φ18 | 280 | 250 | 10 |
| 40 | 190 | 145 | 110 | 85 | 18 | 4-Φ18 | 280 | 300 | 14 |
| 50 | 216 | 160 | 125 | 100 | 20 | 4-Φ18 | 300 | 350 | 20 |
| 65 | 241 | 180 | 145 | 120 | 22 | 8-Φ18 | 330 | 350 | 25 |
| 80 | 283 | 195 | 160 | 135 | 22 | 8-Φ18 | 360 | 400 | 30 |
| 100 | 305 | 230 | 190 | 160 | 24 | 8-Φ23 | 400 | 500 | 40 |
| 125 | 381 | 270 | 220 | 188 | 28 | 8-Φ25 | 430 | 600 | 65 |
| 150 | 403 | 300 | 250 | 218 | 30 | 8-Φ25 | 500 | 800 | 85 |
| 200 | 502 | 360 | 310 | 278 | 34 | 12-Φ25 | 680 | 800 | 100 |
| 250 | 568 | 425 | 370 | 332 | 36 | 12-Φ30 | 790 | 1300 | 165 |
聲明:【DQ41Y,DQ41F,DQ61Y,DQ61F低溫球閥】規格型號、結構尺寸由上海凱利科閥門有限公司提供,如何選擇適用的DQ41Y,DQ41F,DQ61Y,DQ61F低溫球閥產品,使之在工藝控制中安全可靠、經濟適用,可致電我司銷售部門及技術部門,我們將在最短的時間內為您解答! |